华东师范大学附属无锡滨湖学校最新进展

更新时间:2023-12-17 22:02:20作者:佚名

  华东师范大学附属无锡滨湖学校

  无锡教育 2022-04-24消息

  华东师范大学附属无锡滨湖学校已完成概念设计方案,进入深化设计阶段,预计2022年6月启动建设。

  马山地区九年一贯制学校项目用地预审与选址意见书批前公示

  (根据项目选址图显示,小编发现地块与华东师范大学附属无锡滨湖学校的选址重合)

  

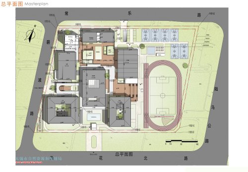
  该项目为马山地区九年一贯制学校项目,建设单位为无锡市滨湖区马山街道办事处。项目位于滨湖区陆马公路与渔花北路交叉口西北侧,东至陆马公路,南至渔花北路,西至碧波路,北至常乐路,可建设用地面积约54163.4平方米。

  

  图源:无锡市行政审批局


  2022-05-23无锡市自然资源和规划局网站公布了马山地区九年一贯制学校规划(建筑)设计方案批前公示

  

  该项目为马山地区九年一贯制学校,建设单位为无锡市马山街道办事处,项目位于滨湖区陆马公路与渔花北路交叉口西北侧,东至陆马公路,南至渔花北路,西至碧波路,北至常乐路,可建设用地面积约54163.4平方米,用地性质为九年一贯制学校用地。本次报审方案,总建筑面积约74546平方米(含地下建筑面积约21530平方米),容积率、建筑密度、绿地率等相关指标满足规划要求。

  

  

  

  


  12月22日下午滨湖区人民政府与华东师范大学,共同签署联合办学协议书华东师范大学附属无锡滨湖学校。

  地址:地块位于无锡太湖国家旅游度假区,陆马公路与常乐路交叉口

  

  规划详情

  学校为公办九年一贯制学校,分小学部、初中部,设计规模小学部为48班、初中部为24班,占地面积约98亩,选址无锡太湖国家旅游度假区范围内,预计最早将于2023年投用。

  华东师范大学基本情况

  华东师范大学是我国知名高等学府,是由国家举办、教育部主管,教育部与上海市人民政府重点共建的综合性研究型大学,被列入“211工程”“985工程”高校行列,科研实力雄厚、办学成果卓著,截至2021年11月,学校有博士学位授权一级学科31个,硕士学位授权一级学科35个。

  华东师范大学将选派一名优秀校长,帮助新校区招聘和组建专业教师团队,打造一个既高质量又有特色的学校。其次,我们为成员校搭建教学技术信息共享平台,培养拔尖优秀人才。

为您推荐

五区八县是指哪(五区八县是指哪福州)

1、五区:鼓楼区,台江区,仓山区,晋安区,马尾区。2、八县:长乐市,福清市,闽侯县,罗源县,连江县,平潭县,永泰县,闽清县。3、福州,别称榕城,简称“榕”,隶属于福建省,位于福建省东部、闽江下游及沿海地区,是福建省省会,

2023-12-19 18:06

宜昌是哪个省 宜昌是哪个省份的城市

1、宜昌,湖北省地级市。位于长江中上游结合部、湖北省西南部,素有“三峡门户”“川鄂咽喉”之称。宜昌古称“夷陵”,因“水至此而夷、山至此而陵”得名。清朝时改称“宜昌”,取“宜于昌盛”之意。宜昌是世界历史文化名人屈原、古代民

2023-12-16 18:09

萨摩亚是哪个国家 萨摩亚是哪个国家,首都是哪里

1、萨摩亚是一个独立的国家,位于波利尼西亚岛群中心,有波利尼西亚心脏之称。官方语言为萨摩亚语,通用英语,其制造业、旅游业和服务业是三大支柱产业。 2、萨摩亚虽然不是发达国家,但是政府却很积极鼓励外国投资。他们致力于工业

2023-12-16 18:07

审计局是做什么的(审计局是做什么的有前途吗)

1、审计局是主要负责地方政府各部门和所有企事业单位的审计监督工作的组织机构。2、地方各级审计局均为行政单位,国家公务员编制。3、审计局一般设有办公室、财政金融审计科、行政事业审计科、经贸审计科、固定资产投资审计科、农业资

2023-12-15 12:08

黑龙江省会及五大城市分别是 黑龙江五个市

1、省会:哈尔滨。五大城市:哈尔滨市、齐齐哈尔市、牡丹江市、大庆市、佳木斯市。2、哈尔滨,简称“哈”,古称上京、会宁府、阿勒锦、滨江,别称冰城,是黑龙江省省会、副省级市、哈尔滨都市圈核心城市,国务院批复确定的中国东北地区

2023-12-14 12:10

什么叫自贸区 什么叫自贸区个体工商户

1、自贸区一般指自由贸易区。2、自由贸易区是指签订自由贸易协定的成员国相互彻底取消商品贸易中的关税和数量限制,使商品在各成员国之间可以自由流动。但是,各成员国仍保持自己对来自非成员国进口商品的限制政策。有的自由贸易区只对

2023-12-13 18:05

加载中...